Freya 2 (CE)

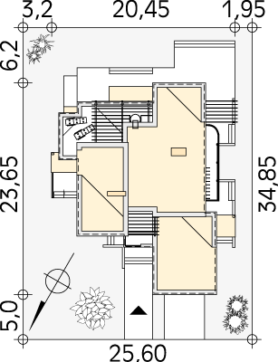
Rzut parteru

piwnica

    Rzut poddasza

    parter

    • 1. wiatrołap 9.2 m2
    • 2. hol 31.8 m2
    • 3. gabinet 7.5 m2
    • 4. łazienka 4 m2
    • 5. kuchnia 21 m2
    • 6. spiżarnia 3.7 m2
    • 7. pomieszczenie gospodarcze 4.5 m2
    • 8. jadalnia 21.1 m2
    • 9. oranżeria 15.8 m2
    • 10. salon 34.5 m2
    • 11. pokój 27.1 m2
    • 12. schody 7 m2
    • 13. pomieszczenie gospodarcze 9.5 m2
    • 14. garaż 40.3 m2

    Rzut układu działki

    582 m2

    Stan deweloperski

    Dodaj do ulubionych

    Dodaj

    Opis domu

    Typ domu:wolnostojacy
    Powierzchnia zabudowy / netto:582 / 324.4 m 2
    Kubatura:1990 m 3

    Wysokość:7.87 m

    Minimalna długość działki:25.6 m
    Minimalna szerokość działki:34.85 m

    Każdy projekt dopasowujemy do potrzeb klienta:
    - wielkość budynku,
    - standard wykończenia,
    - rozmieszczenie poszczególnych pomieszczeń,
    - rodzaj materiałów,
    - indywidualne sugestie klienta.

    Kup projekt





    Formularz kontaktowy

    Zgodnie z art. 13 ust. 1 i ust. 2 ogólnego rozporządzenia o ochronie danych osobowych z dnia 27 kwietnia 2016 r. (dalej: RODO) informuję, iż: Pokaż pełną treść zgody. Ukryj

    1. Administratorem Państwa danych osobowych jest firma Drev-Mex Daniel Cebrat z siedzibą w Łękawicy (34-321) przy ul. Stolarskiej 2, NIP 5532265463 REGON 072877164 (+48) 515-901-905, biuro@drevmex.pl.
    2. Państwa dane osobowe przetwarzane będą w celu udzielenia odpowiedzi na zadane nam pytanie oraz w celach marketingu produktów i usług własnych.
    3. Podstawą przetwarzania Państwa danych osobowych jest art. 6 ust. 1 lit. a i f RODO (zgoda oraz prawnie uzasadniony interes realizowany przez administratora).
    4. Państwa dane osobowe będą przechowywane przez okres, w którym posiadają przydatność do celu, w jakim zostały zebrane, nie krócej jednak niż przez okres przedawnienia wzajemnych roszczeń, okres przez który jesteśmy zobowiązani przetwarzać dane na podstawie obowiązujących przepisów prawa, w zależności, który z tych okresów będzie trwał najdłużej. Dane osobowe mogą być przekazywane podmiotom dostarczającym zewnętrzne usługi dla firmy Drev-Mex Daniel Cebrat.
    5. Posiadają Państwo prawo dostępu do treści swoich danych oraz prawo ich sprostowania, usunięcia, ograniczenia przetwarzania, prawo do przenoszenia danych oraz prawo do wniesienia sprzeciwu wobec przetwarzania.
    6. Posiadają Państwo prawo do cofnięcia udzielonej zgody w dowolnym momencie, bez wpływu na zgodność z prawem przetwarzania, którego dokonano na podstawie zgody przed jej cofnięciem.
    7. Mają Państwo prawo wniesienia skargi do właściwego organu nadzoru, tj. Prezesa Urzędu Ochrony Danych Osobowych (dawniej: Generalnego Inspektora Danych Osobowych), gdy uznają Państwo, iż przetwarzanie danych osobowych Państwa dotyczących narusza przepisy RODO.
    8. Podanie danych osobowych nie jest wymogiem ustawowym, umownym, ani warunkiem zawarcia umowy - jest ono dobrowolne. Konsekwencją niepodania danych jest brak możliwości udzielenia odpowiedzi na Państwa pytanie lub brak możliwości prowadzenia działań marketingowych.

    Wyrażam zgodę na przetwarzanie przez firmę Drev-Mex Daniel Cebrat z siedzibą w Łękawicy moich danych osobowych zawartych w formularzu, w celu i zakresie niezbędnym do uzyskania odpowiedzi na zadane pytanie. 

    Wyrażam zgodę na otrzymywanie od administratora danych firmy Drev-Mex Daniel Cebrat z siedzibą w Łękawicy, informacji marketingowych przez e-mail, sms, telefon i inne podobne środki.

    Strony internetowe Bielsko pozycjonowanie stron Bielsko
    Projektowanie stron www Bielsko Pozycjonowanie Stron